HALTE DE NUIT ET BAINS DOUCHES
SAINT-DENIS (93)
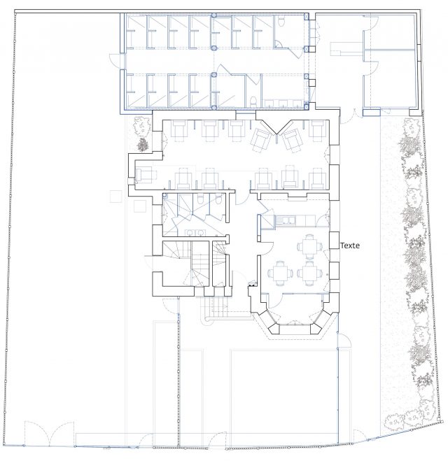
Au sortir de Paris, sur une des voies d’accès au faisceau de voies de chemin de fer de la gare du Nord depuis l’avenue recouvrant l’autoroute A1 et menant à Saint-Denis, d’anciennes habitations du personnel de la SNCF formant demeure cossues attendaient au milieu de leur jardin un usage. C’est dans une de ces demeures formées de deux vastes logements superposés qu’est mis à profit, dans un délai très court, les locaux vacants pour créer une Halte de Nuit avec les Hommes au rez-de-chaussée et les Femmes aux étages. Premier dispositif de mise à l’abri avec accueil collectif nocturne dans l’urgence et par économie de moyens stricte : les chambres existantes sont rénovées, les séjours forment les salles de repas, les anciennes salles de bains et cuisines sont transformées en sanitaires collectifs.
La ville a souhaité dans le même temps, créer des bains douches qui, eux, fonctionnent la journée. Le garage atelier existant a été prolongé pour inclure des cabines et des sanitaires, ainsi que la partie administrative et le stockage des produits de soins corporels. L’ensemble est discret en retrait de la prestance du pavillon devenu Halte de nuit.
RESTRUCTURATION – URGENCE SOCIALE – ECONOMIES DE MOYENS
PROGRAMME | RESTRUCTURATION ET EXTENSION D'UN PAVILLON D'HABITATION EN CENTRE D'HERBERGEMENT D'URGENCE |
|---|---|
MAITRISE D’OUVRAGE | GROUPEMENT ABRI-ASSOCIATION HÔTEL 93 |
MAITRISE D’ŒUVRE | FRANCIS LANDRON SARL D’ARCHITECTURE |
SURFACE | 453 m2 SU |
COUT TRAVAUX HT | 520 000 € HT |
MISSION | Mission de base |
CALENDRIER | Livraison mai 2023 |
