ECO-CONSTRUCTION D'UNE ECOLE POLYVALENTE, CUISINE DE PRODUCTION, LOCAUX SOCIAUX
PARIS 18e [75]
Le site Chapelle Charbon, autrefois industriel, est devenu un grand parc. A la naissance de la plaine de France, au pied de deux buttes, le parc Chapelle Charbon conserve l’emprise ferroviaire et s’ouvre à l’horizon de la plaine, après avoir quitté les rues étroites et denses du cœur de Paris.
C’est dans la force de cette plaine, dans cette ouverture, que s’inscrira la nouvelle école. Tout à coup, au milieu de ce tissu urbain quasi continu, l’horizon apparaît et peut parler aux habitants. A Paris enseigner dans un parc est une chance, c’est donc dans le parc que nous avons choisi d’édifier ce nouvel équipement et non en lisière. L’école est entourée, portée par un écrin végétal.
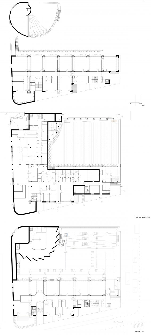
Le projet organise ensemble les trois fonctions du programme pour mettre chacun dans la meilleure situation : la restauration centrale et le service de nettoyage de la ville prennent pied dans la rue à l’ouest et au nord, innervés de toutes les entrées et sorties fonctionnelles voulues et de lumière naturelle. Ils servent de socle à l’école, soulevée et placée en surplomb sur le parc, à la recherche d’un lien avec l’horizon.
BOIS MASSIF – REEMPLOI – MATERIAUX BIOSOURCÉS – RÉCUPÉRATION EP – RE2020 – PERFORMANCE ENERGETIQUE
PROGRAMME | ECOLE MATERNELLE 6 CLASSES, ECOLE PRIMAIRE 12 CLASSES, CUISINE DE PRODUCTION ET LOCAUX SOCIAUX |
|---|---|
MAITRISE D’OUVRAGE | VILLE DE PARIS |
MAITRISE D’ŒUVRE | adsc mandataire, FRANCIS LANDRON SARL CO-TRAITANT, IPC BET structure, MAYA thermiques, fluides et environnement, BEHAL cuisiniste, GILBERT économiste |
SURFACE | 3 877 M2 SU - 4 218 M2 SDP |
COUT TRAVAUX HT : | 15 000 000 € |
MISSION | Mission de base |
CALENDRIER | Concours 2022 |
